Potomac Poolhouse

POTOMAC POOLHOUSE

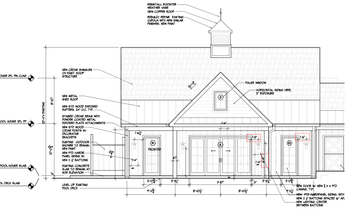
This project represents a complete structural metamorphosis, transforming a weathered, historic stable into a sophisticated poolhouse retreat. To erase the building's utilitarian past, we focused on a radical infusion of light. By integrating expansive windows and oversized sliding glass doors, we dissolved the barrier between the interior and the estate’s lush grounds, creating a radiant, open-concept floor plan that honors the original scale while embracing modern luxury.

The architectural silhouette was redefined by a grand gable and an inviting front porch, anchored by a timeless, neutral color palette. Innovation extends to the poolside, where we replaced traditional pavers with a manicured grass deck for a seamless, "soft-scape" aesthetic. Completed by a custom pergola draped in fragrant wisteria, the result is a breathtaking pavilion that the homeowner describes as the perfect harmony of historic character and contemporary elegance.

Sarah Armstrong